Перейти к содержимому


Фотография

Всё о бане

баня все о бане

  • Авторизуйтесь для ответа в теме
Сообщений в теме: 295

#21 Ротан

Ротан
  • Пользователь
  • 1 689 сообщений
  • сказали "спасибо" 36 раз
  • Дата регистрации:
    23-Июнь 14

  • Отправить ЛС   Отправить ЛС
  •  
  • Город:Барнаул, Южный

Отправлено 02 Ноябрь 2014 - 20:20

а если не убирать а обшить внутри - у товарища парилка обшита осиной

 Хотел тоже сначала обшить, но мне кажется брус смотрится поинтересней. Да и дишит баня, тож не маловажно! 

Бывает обошьют и золотинкой прослойкой сделают. Так получается как в термосе сидишь!)))



#22 Ротан

Ротан
  • Пользователь
  • 1 689 сообщений
  • сказали "спасибо" 36 раз
  • Дата регистрации:
    23-Июнь 14

  • Отправить ЛС   Отправить ЛС
  •  
  • Город:Барнаул, Южный

Отправлено 02 Ноябрь 2014 - 20:23

 Мне капельки смолы наоборот нравятся - более натурально выглядят стены. И не мешают.

Изночально, когда смола побежала, к стенкам не прикоснутся было. И потолок сделал из рейки сосновой, тож не гуд. На череп может капнуть или на осинные полки попасть.

Там даже не капельки, а целые потоки из некоторых брёвен были.



#23 Sha@

Sha@
  • Пользователь
  • 1 516 сообщений
  • сказали "спасибо" 42 раз
  • Дата регистрации:
    24-Июнь 14

  • Отправить ЛС   Отправить ЛС
  •  
  • Город:Барнаул

Отправлено 02 Ноябрь 2014 - 20:24

Три стены обшил. Подложка без фольги, паризол. Что бы между обшивой и стеной конденсат не собирался. Одну оставил так. Мне капельки смолы нравятся, а спиной у той стены ни кто не трется. 



#24 Хмурый

Хмурый
  • Пользователь
  • 4 164 сообщений
  • сказали "спасибо" 51 раз
  • Дата регистрации:
    23-Июнь 14

  • Отправить ЛС   Отправить ЛС
  •  
  • Город:Барнаул
  • Могу быть полезен:IT, ИБ

Отправлено 02 Ноябрь 2014 - 20:26

   

Народ, как вы поступаете со смолой в бане? 

Я ее игнорирую


  • Сан Саныч и Георгич это нравится

#25 Ротан

Ротан
  • Пользователь
  • 1 689 сообщений
  • сказали "спасибо" 36 раз
  • Дата регистрации:
    23-Июнь 14

  • Отправить ЛС   Отправить ЛС
  •  
  • Город:Барнаул, Южный

Отправлено 02 Ноябрь 2014 - 20:26

Я ее игнорирую

Эт слишком просто.



#26 Andruha

Andruha
  • Пользователь
  • 1 064 сообщений
  • сказали "спасибо" 49 раз
  • Дата регистрации:
    23-Июнь 14

  • Отправить ЛС   Отправить ЛС
  •  
  • Город:Барнаул

Отправлено 02 Ноябрь 2014 - 20:33

На череп может капнуть или на осинные полки попасть.

Я тоже поначалу на них смотрел - а сейчас они сухие на всех стенах и не мешают. 


  • Георгич это нравится

#27 Ротан

Ротан
  • Пользователь
  • 1 689 сообщений
  • сказали "спасибо" 36 раз
  • Дата регистрации:
    23-Июнь 14

  • Отправить ЛС   Отправить ЛС
  •  
  • Город:Барнаул, Южный

Отправлено 02 Ноябрь 2014 - 20:38

Я тоже поначалу на них смотрел - а сейчас они сухие на всех стенах и не мешают. 

 Бывал в бане "по чёрному". Там тож ни чего не мешает, если не задевать стены.

В домашней бане, думаю, надо как больше комфорта

Не охота у дочерей косы выстригать из-за смолы!)))



#28 FEDOT

FEDOT
  • Пользователь
  • 722 сообщений
  • сказали "спасибо" 6 раз
  • Дата регистрации:
    24-Июнь 14

  • Отправить ЛС   Отправить ЛС
  •  
  • Город:Новоалтайск

Отправлено 02 Ноябрь 2014 - 23:05

 

Не охота у дочерей косы выстригать из-за смолы!)))

Паяльной лампой стены и потолок прожги,только баню не спали. :)


Лучше летом у костра,чем зимой на солнце.


#29 САНАР

САНАР
  • Пользователь
  • 31 сообщений
  • сказали "спасибо" 0 раз
  • Дата регистрации:
    24-Октябрь 14

  • Отправить ЛС   Отправить ЛС
  •  
  • Город:Троицкое

Отправлено 02 Ноябрь 2014 - 23:38

Тоже с этим боролся, зимой в стужёной бане скребком соскребал но потом бросил это дело.



#30 Сибиряк

Сибиряк
  • Пользователь
  • 444 сообщений
  • сказали "спасибо" 1 раз
  • Дата регистрации:
    24-Июнь 14

  • Отправить ЛС   Отправить ЛС
  •  
  • Город:Барнаул

Отправлено 03 Ноябрь 2014 - 00:34

Да ты радуйся и наслаждайся запахами. 

Скоблить будешь когда надоест.


  • Гризли, Хмурый и Ротан это нравится

#31 нагорный

нагорный
  • Пользователь
  • 2 098 сообщений
  • сказали "спасибо" 59 раз
  • Дата регистрации:
    25-Июнь 14

  • Отправить ЛС   Отправить ЛС
  •  
  • Город:Барнаул

Отправлено 22 Март 2015 - 20:16

Я тут в бане сегодня дубовым веником попарился,мне больше чем берёзовым понравилось.Хотя я и не любитель садо мазо,но всётки дубовый веник рулит.


...стараюсь писать то,что смогу повторить при встрече...(Вячеслав,имя моё)


#32 Гость--

Гость--
  • Пользователь
  • 10 499 сообщений
  • сказали "спасибо" 28 раз
  • Дата регистрации:
    23-Июнь 14

  • Отправить ЛС   Отправить ЛС
  •  

Отправлено 22 Март 2015 - 20:19

Я тут в бане сегодня дубовым веником попарился,мне больше чем берёзовым понравилось.Хотя я и не любитель садо мазо,но всётки дубовый веник рулит.

 вот если можжевеловый попробуешь .....))) Вообще - сказка !


Изображение

#33 нагорный

нагорный
  • Пользователь
  • 2 098 сообщений
  • сказали "спасибо" 59 раз
  • Дата регистрации:
    25-Июнь 14

  • Отправить ЛС   Отправить ЛС
  •  
  • Город:Барнаул

Отправлено 22 Март 2015 - 20:21

 вот если можжевеловый попробуешь .....))) Вообще - сказка !

Из можжевеловых веток?


...стараюсь писать то,что смогу повторить при встрече...(Вячеслав,имя моё)


#34 Гость--

Гость--
  • Пользователь
  • 10 499 сообщений
  • сказали "спасибо" 28 раз
  • Дата регистрации:
    23-Июнь 14

  • Отправить ЛС   Отправить ЛС
  •  

Отправлено 22 Март 2015 - 20:24

Из можжевеловых веток?

Да  . Если честно сам не заготавливал , их продают .


  • нагорный это нравится
Изображение

#35 Труба

Труба
  • Пользователь
  • 1 964 сообщений
  • сказали "спасибо" 31 раз
  • Дата регистрации:
    23-Июнь 14

  • Отправить ЛС   Отправить ЛС
  •  
  • Город:Барнаул
  • Могу быть полезен:компания Energizer

Отправлено 22 Март 2015 - 21:04

тоже напишу про баню:

в прошлом году сделал на даче.

1. Снесли с сыном старую сарайку, выровняли место.

 

Фото0082.jpg

 

2. сделал ленточный фундамент, слив из-под мойки-парилки, вентиляционные отверстия.

 

3. Собрал нижнюю обвязку из бруса 10х15. Поставил стойки. И связал их сверху.

 

Фото0004.jpg

 

 

Фото0003.jpg

 

4. в стены вставил утеплитель (5 см) и с двух сторон закрыл пароизоляцией.

 

Фото0016.jpg

 

5. Внутри поставил печку (типа Термофор). с топкой из предбанника.

 

Фото0018.jpg

 

6. Снаружи обшил сайдингом.

 

Фото0037.jpg

 

Фото0038.jpg

 

 В итоге: топится очень быстро (за 40-50 минут доходит до 80 град). Через 2 часа топки внутри более 100 град. Сухой и приятный пар (кстати, смола тоже выходит, но я считаю это неким банным "шармом"). Держит тепло очень долго. Даже утром вода ещё горячая.

Зимой использовать не пробовал - это летняя банька. Стоимость всей бани 50 тр (по ценам прошлого года).


  • Nik(дядьКоля), Гость--, NAPALM и 11 другим это нравится

С уважением, Сергей.


#36 Хмурый

Хмурый
  • Пользователь
  • 4 164 сообщений
  • сказали "спасибо" 51 раз
  • Дата регистрации:
    23-Июнь 14

  • Отправить ЛС   Отправить ЛС
  •  
  • Город:Барнаул
  • Могу быть полезен:IT, ИБ

Отправлено 22 Март 2015 - 22:49

Я тут в бане сегодня дубовым веником попарился,мне больше чем берёзовым понравилось.Хотя я и не любитель садо мазо,но всётки дубовый веник рулит.


Дубовый прочнее и воздух лучше нагнетает, однако берёзовый ароматнее


  • Ротан и нагорный это нравится

#37 БлэкХолыч

БлэкХолыч
  • Пользователь
  • 8 004 сообщений
  • сказали "спасибо" 73 раз
  • Дата регистрации:
    09-Ноябрь 14

  • Отправить ЛС   Отправить ЛС
  •  
  • Город:Барнаул

Отправлено 23 Март 2015 - 01:35

У меня соседи по даче, когда веники берёзовые вяжут, всегда добавляют несколько веточек полыни и жгучей крапивы( не двудомной, в Солонешном её "жигалом" кличут) для чего интересно, мож кто так ещё делает?
  • Ротан и Котик это нравится

Мне жалко людей, что рассвет не встречали,
Не ведали прелести дымной ухи,
Навстречу дождю и пурге не шагали
За счастьем рыбацким по тропам глухим...


#38 Stalker

Stalker
  • Модератор
  • 5 861 сообщений
  • сказали "спасибо" 790 раз
  • Дата регистрации:
    23-Июнь 14

  • Отправить ЛС   Отправить ЛС
  •  
  • Город:Барнаул

Отправлено 23 Март 2015 - 12:32

Как вы готовите веник к парной? 

Меня отец учил просто - в тазик кипятка с бака, туда веник, несколько минут (главное - не сварить) и все - веник готов. 

Жена говорит, что их дед в холодной воде замачивал за пару часов до бани, потом просто горячей водой окатывал. Один раз так попробовал - не понравилось (или не получилось). 

Из экспериментов понял, что надо не совсем кипяток делать, а примерно ковшик холодной на тазик добавить, тогда веник как "шелковистый" становится. 

Ну и веники березовые режу сам летом, мне много не надо - с десяток хватает, т.к. зимой редко топим (воду таскать из дома напрягает).


  • Ротан это нравится

Фидер - наше всё!


#39 Сибиряк

Сибиряк
  • Пользователь
  • 444 сообщений
  • сказали "спасибо" 1 раз
  • Дата регистрации:
    24-Июнь 14

  • Отправить ЛС   Отправить ЛС
  •  
  • Город:Барнаул

Отправлено 23 Март 2015 - 13:08

150-160 веников  каждый год. Экспериментов с запариванием провел много, да и до сих пор не успокоился, ищу идеал.

Очень нравится так. За неделю до бани ( а расписание у меня устоявшееся : в субботу баня с гостями, в воскресенье - для души) закапываю подготовленные веники в сугроб. Бывает заметет, засыпет снегом. Приловчился оставлять снаружи ручку полностью, так удобно искать и доставать.

Извлекаю из снега перед походом в баню. В запарочный тазик и заливаю теплой водой. Именно теплой, не горячей. Думаю градусов 45-50. Уже рукой понимаю нужную температуру. Как только тазик наполнился - все! Веник готов. Он еще немного "шуршит", разговаривает, поет! 

 Пробуйте, наслаждайтесь. Много чего еще рассказать могу.

С легким паром!


  • Гость--, Voland, Сан Саныч и 9 другим это нравится

#40 Stalker

Stalker
  • Модератор
  • 5 861 сообщений
  • сказали "спасибо" 790 раз
  • Дата регистрации:
    23-Июнь 14

  • Отправить ЛС   Отправить ЛС
  •  
  • Город:Барнаул

Отправлено 23 Март 2015 - 13:43

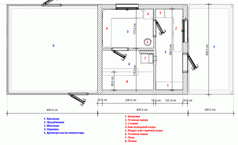
Напишу немного про свою баню, может кому будет полезен опыт. 

 

В 2007 году построил баньку 4х4. :) В смысле, по наружнему размеру 4 метра. 

Схему рисовали несколько раз, очень помог советами Юра Чепугов (на фишинг-алтае ник "Дизелист") - получилось, что раздевалка, мойка и парная должны быть отдельно. Да и парную лучше делать побольше (хотя я сперва думал, что мойка нужна больше). Правда немного потом изменили - перегородку между парной и мойкой сдвинул в мойку.

banja_cxema.gif

Печь по его совету купил "Термофор Тунгуска-16". В Барнауле обошлась в 12.500р (с баком на 75л).
Парная 2*2.2*2м (ш*д*в)=8.8 кубов. Камни загрузил (не знаю сколько кг), почти без горки. Через несколько лет эксплуатации печки - очень ей доволен. Летом нагревает парную минут за 40, но вода еще не совсем горячая. Зимой примерно полтора-два часа.
Как-то летом поднял до 110, уши "в трубочку" сворачивались. Само классно при 90 париться.
Для уменьшения тяги (чтобы не все тепло в трубу улетало) сделал небольшое колено.

 

Итак, а теперь небольшой фотоотчет:

Копаем ямы под будущий фундамент и строим опалубку

01.JPG

02.JPG

03.JPG

В таком виде фундамент перезимовал зиму. 

На следующий год выкладываю нулевой цикл

04.JPG

Завозим строматериалы и начинается...

Брус заказывали на пилораме 20х13см, практически сразу по длине как надо (по 3,9м). Складываем, сразу снимаем верхнюю фаску электрорубанком. 

05.JPG

Строим потихоньку, вертикально брусья связываем гвоздями на 200 (высверливая для них вплобруса отверстия). Сразу укладываем рулонную паклю. 

06.JPG

Паклю потом конопатим

07.JPG

Согласно схеме оставляем проемы под окна и двери. Последний венец делаем с навесом для крыльца. На земле делаем "треугольники", и уже готовые поднимаем наверх. Расшиваем, чтобы не упали, прибиваем скобами к срубу. 

08.JPG

09.JPG

10.JPG

Копаем вручную яму для канализации.

11.JPG

Заказываем кольца

12.JPG

Немного не угадали с глубиной, пришлось докладывать кирпичами.

13.JPG

Уходим в очередную зиму, т.к. средства и время еще уходит на саму стройку дома. 

14.JPG

Следующий этап - кроем крышу красным ондулином (как и весь дом). 

15.JPG

Подшиваем потолок доской на 40мм

16.JPG

Вот уже чувствуется БАНЯ

17.JPG

Внутри прокладываем канализацию, ставим "замок". Землю разравниваем так, чтобы был скат в сторону слива. Уплотняем.

18.JPG

Делаем опалубку для печки и центральной стенки. Засыпаем под мойкой и парилкой щебень, тоже трамбуем.

19.JPG

Заливаем бетон, когда он еще не совсем застыл - "железним" его сухим цементом.

20.JPG

Ставим печку и обкладываем красным кирпичом (но тут допустил ошибку, надо было обкладывать огнеупорным и сразу делать с расшивкой, а мы еще планировали плиткой облицевать, но так и не сделали)

21.JPG

22.JPG

Ставил лаги для пола

23.JPG

Вставляем окна и двери

24.JPG

Стелем пол, зашиваем стены 

25.JPG

Ставим всю печку (вот и колено видно трубы, которое пришлось делать из-за того, что печка встала точно под коньком)

26.JPG

Дядька мне сделал приспособу для дров, чтобы не россыпью лежали

27.JPG

Это предбанник (справа вход и полок для сидения, слева печка и вход в мойку, сзади вешалка для вещей, прямо полки для всяких мелочей)

28.JPG

В мойку выведен кран горячей воды, полок для умывания, бочка с холодной водой (за дверью в парилку)

29.JPG

Парная (нижний полок г-образный для сидения, верхний лежачий, но и сидеть на нем нормально)

30.JPG

 

 

В бОльшей части, эта баня - заслуга моего отца! Так что ему большое спасибо!!! 

А я так, в подмастерьях...


  • Гость--, Сан Саныч, пенсионер и 23 другим это нравится

Фидер - наше всё!





Количество пользователей, читающих эту тему: 1

0 пользователей, 1 гостей, 0 анонимных